物件情報
新築戸建
摂津市鶴野4丁目 新築戸建
●人気の「ららぽーと門真」の最寄り駅(門真市駅)まで電車で8分
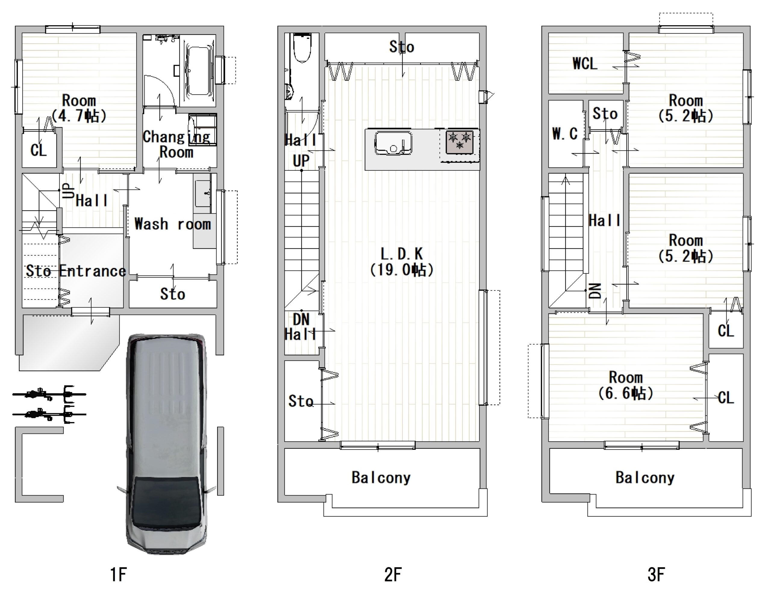
●玄関にはシューズクローゼット、キッチンにはパントリー、各お部屋にクローゼットと収納豊富です
●駐車2台可能(車種制限あり)
●前面道路約6m歩道約2.4m(約8.4m)
●南向きにつき日当たり良好
●区画の整った閑静な住宅街
周辺はマンションや一戸建て、店舗、工場などがが立ち並ぶ住宅地。
安威川が近く、川沿いには「新幹線公園」があります。
中央環状線に近く、車での移動に便利です。
物件概要
- 所在地
- 摂津市鶴野4丁目
- 価格
- 4,180万円
- 最寄駅
- 大阪モノレール「摂津駅」徒歩8分
- 土地面積
- 79.80㎡(24.13坪)
- 建物面積
- 107.85㎡(32.62坪)
- 間取り
- 4LDK
- 構造
- 木造3階建
- 用途地域
- 準工業地域
- 建ぺい率
- 60%
- 容積率
- 200%
- 築年月
- 2025年12月
- 道路幅員
- 公道 南6m幅
- 建築確認番号
- 第HK23-0421号
- CONTACT US
- お問い合わせはお電話·メール·フォームで承っております。
お気軽にご相談ください。
[営業時間 9:00~19:00]※定休日 水曜日 - お電話でのお問い合わせはこちら
- Webからのお問い合わせはこちら
プラン

周辺環境
-

摂津市立三宅柳田小学校まで1360m
-

摂津市立第三中学校まで1520m
-

大阪モノレール摂津駅まで640m
-

ファミリーマート 摂津鶴野店まで434m
-

コノミヤ摂津市駅前店まで1680m
- CONTACT US
- お問い合わせはお電話·メール·フォームで承っております。
お気軽にご相談ください。
[営業時間 9:00~19:00]※定休日 水曜日 - お電話でのお問い合わせはこちら
- Webからのお問い合わせはこちら


